Ein tur i den nye skulen - Bokn kommune

Ein tur i den nye skulen

Framfor den nye skulen (mellomtrinnfløyen): Fv. prosjektleiar Svein Ersland, kommunedirektør Ingeborg Skjølingstad og ordførar Osmund Våga. - Klikk for stort bileteFramfor den nye skulen (mellomtrinnfløyen): Fv. prosjektleiar Svein Ersland, kommunedirektør Ingeborg Skjølingstad og ordførar Osmund Våga. Jardar Havikbotn 23. februar fekk ordføraren, kommunedirektøren og underteikna ei omvising av prosjektleiar Svein Ersland, i eit staseleg bygg som nå er tett og der innreiingsarbeida har starta. Velkommen inn!

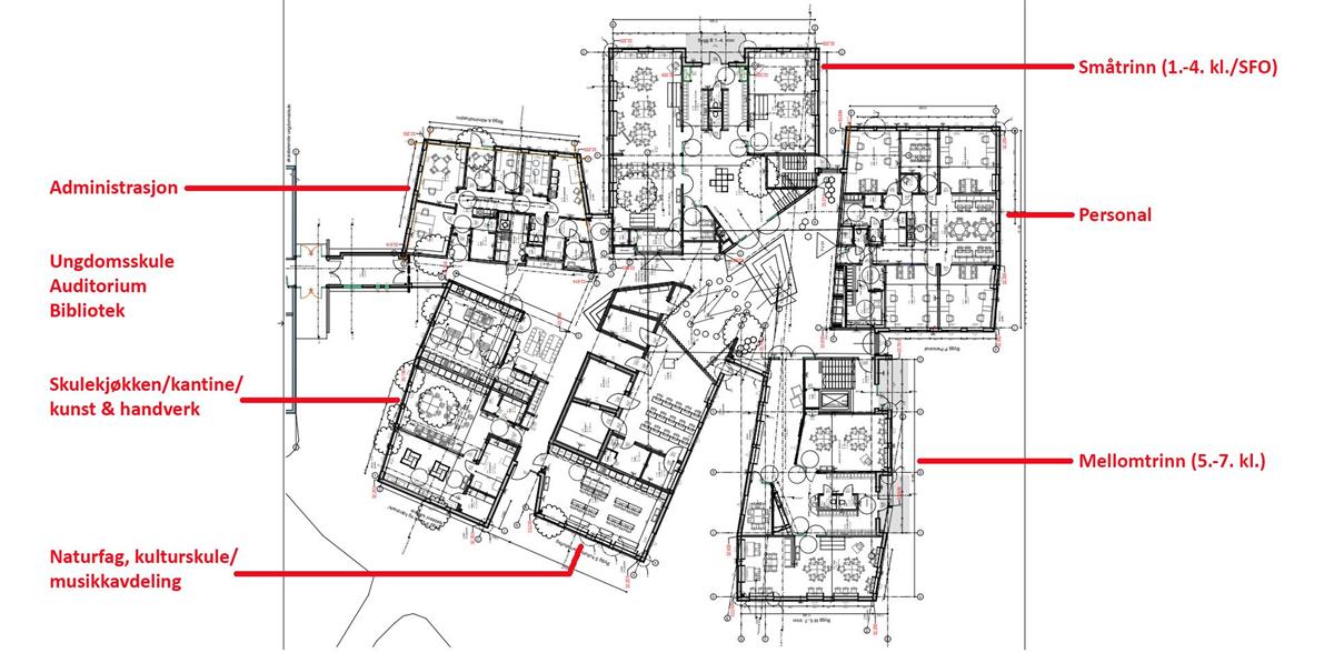
Skulebygget på 1800 m2 (fordelt på 1626 m2 i 1. etasje og 174 m2 i underetasjen) består av seks fløyar som er bundne saman av eit fellesareal. I nord er nybygget hekta på gangen til ungdomsskulen, Auditoriet og biblioteket. Her kjem også hovudinngangen; mellom nytt og gammalt bygg.

Det komplekse bygget har fleire inngangar. Me gjekk inn i sørvest, der mellomtrinnet (5.-7. kl.) skal halda til. Her kjem også trapper til underetasjen, med avsett plass for framtidig heis.

Oversiktsteikning, 1. etasje. - Klikk for stort bileteOversiktsteikning, 1. etasje. Haaland Thuestad/Jardar Havikbotn  

Staseleg 

Forbi trapperommet og ut i fellesarealet fekk me personalavdelinga på høgre side, fløyen til småtrinnet (1.-4. kl.)/SFO rett fram og kulturskuleavdelinga på venstre side. Bak denne kjem naturfagrommet. I småtrinn-fløyen er det også ei rømningstrapp frå austsida av tilfluktsrommet, med dør ut til det fri.

Det er lett å legga merke til taket i fellesarealet, der laminerte dragarar blir synlege. Her skal også byggast ei kunnskapstrapp rundt ei tresøyle.

Nordover forbi dei støypte øvingsromma i musikkavdelinga, fekk me på venstre side fløyen til skulekjøkken/kantine med kunst og handverk bak. Til høgre administrasjonen.

Nostalgi

Me tok ein tur ned i kjellaren, der det gamle bomberommet skapte nostalgi for ordføraren og underteikna. Kjensla av å vera på veg opp i gymsalen då me gjekk i gangane der nede, kom snikande eit augeblikk. Men så havna me ut i trapperommet i mellomtrinn-fløyen, og vidare til dei nye tekniske romma; ventilasjonsrom, vaktmeisterrom, reinhaldsrom og it-rom.

Prosjektleiar Svein Ersland fortel av utandørsarbeida skal starta i august. I oktober er skulebygget ferdig og klart for laust inventar og utstyr, og i desember er det klart til innflytting. Arbeida er i rute.

Me takkar for ei flott omvising og gler oss til neste!

Her kan du sjå bilde (med tekstar) frå runden (klikk/trykk på bilda viss du vil ha dei større):